520 E 10th StCookeville, TN 38501
Due to the health concerns created by Coronavirus we are offering personal 1-1 online video walkthough tours where possible.




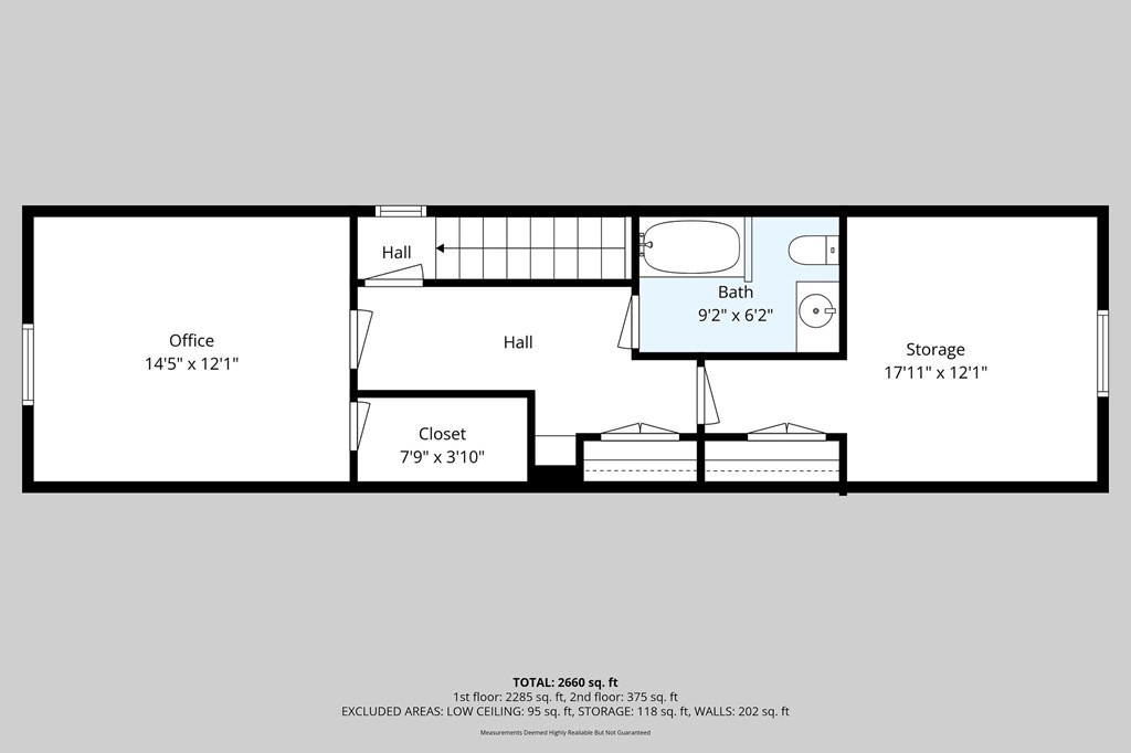
Don't miss this prime commercial opportunity in the heart of Cookeville! This 2,778 sqft building is situated on 0.49 acres in the heart of Cookeville City Limits and is zoned Neighborhood Commercial, offering flexibility for a wide range of business uses. Previously operated as a daycare, the property features 2 levels, multiple spacious rooms, restrooms, kitchen area, spacious paved parking, and high visibility with 293' of road frontage from one of the city’s most traveled corridors. With an average daily traffic count of approximately 14,124 just west of the property and 17,845 along nearby SR-136, this location delivers nonstop exposure & easy access. City utilities installed. Strong visibility, consistent traffic & versatile zoning make this a standout commercial investment in a rapidly growing area of Cookeville. Schedule your showing today! Buyer to verify ALL information
| 2 weeks ago | Status changed to Active Under Contract | |
| 2 weeks ago | Listing updated with changes from the MLS® | |
| 2 months ago | Listing first seen on site |
Listings courtesy of Realtracs as distributed by MLS GRID
Based on information submitted to the MLS GRID as of 2026-01-26 02:26 PM UTC. All data is obtained from various sources and may not have been verified by broker or MLS GRID. Supplied Open House Information is subject to change without notice. All information should be independently reviewed and verified for accuracy. Properties may or may not be listed by the office/agent presenting the information.
The Digital Millennium Copyright Act of 1998, 17 U.S.C. § 512 (the “DMCA”) provides recourse for copyright owners who believe that material appearing on the Internet infringes their rights under U.S. copyright law. If you believe in good faith that any content or material made available in connection with our website or services infringes your copyright, you (or your agent) may send us a notice requesting that the content or material be removed, or access to it blocked. Notices must be sent in writing by email to [email protected].
The DMCA requires that your notice of alleged copyright infringement include the following information: (1) description of the copyrighted work that is the subject of claimed infringement; (2) description of the alleged infringing content and information sufficient to permit us to locate the content; (3) contact information for you, including your address, telephone number and email address; (4) a statement by you that you have a good faith belief that the content in the manner complained of is not authorized by the copyright owner, or its agent, or by the operation of any law; (5) a statement by you, signed under penalty of perjury, that the information in the notification is accurate and that you have the authority to enforce the copyrights that are claimed to be infringed; and (6) a physical or electronic signature of the copyright owner or a person authorized to act on the copyright owner’s behalf. Failure to include all of the above information may result in the delay of the processing of your complaint.

Did you know? You can invite friends and family to your search. They can join your search, rate and discuss listings with you.